東京デザインセンター2Fで進行中の「株式会社アベイチ × Garnier-Thiebaut」ショールームプロジェクト。Vol.3では、収納プランナーとしての視点から造作家具へのこだわりを少し、お伝えできればと思います。
前回の記事はこちらから→→→「空間コンセプトとイメージ」
ショールームに、収納プランナーが必要な理由
美しい空間をつくることと、使いやすい空間をつくることは、ときに相反します。(意匠性と機能性、そのふたつを両立させることは、このお仕事を始めてからずっと追求していると思います。)
特にショールームのような場所では、「魅せる」「見せる」ことが優先されがち。インテリアに関わる収納プランナーとして、機能性と美観は必ず両立していたいと考えています。
今回のプロジェクトでも、デザインを考えながら同時に常に意識していたことがあります。
「ここには何が入るのか。どんなサイズのものが、どれだけの量入るのか。」
未知の部分もある雰囲気ではありましたが、造作家具のひとつひとつに反映されています。
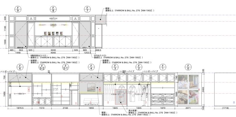
できる限り、収納を増やす
限られた空間の中で、収納量をどこで確保するか。これは住宅の設計でも商空間でも優先度ナンバーワン。
今回の造作家具では壁面を最大限に活用し、見せる場所以外はできる限り収納を増やすことを意識しました。
ハンガーレールの上部にはキャビネットを設け、デッドスペースになりがちな天井近くまで、しっかりと収納として確保しています。
奥行きは、用途に合わせて
モノにはサイズがある。
当然なことではありますが、ずっと言い続けています。笑。というのも、それを無視した設計がとても多いから・・・。完成した後に、何かを扉の中に入れた瞬間、あ、、、ということありますよね。。。
造作家具を設計するうえで、奥行きの設定はとても重要です。奥行きが浅すぎれば入らない。深すぎれば奥のものが取り出しにくい。ちょうどいい奥行きは、何を収納するかによって変わります。
今回は、カタログや資料類がしっかりと収まるよう、各収納の奥行きを用途ごとに検討しました。
ショールームという場所では、商談中にさっとカタログを取り出せることも大切。見た目の美しさだけでなく、使い勝手の良さも同時に設計しています。
引き出しの寸法は、ピローサイズで
アベイチエリアの造作家具には、引き出しを組み込んでいます。
この引き出しのサイズは、アベイチさんからのご要望をもとに決めました。「シーツ生地を見せるためのピローがきちんと入るように」——その一言が、寸法の基準になっています。
リネン製品を扱うショールームだからこそ、商品を美しくストックできることが重要です。
引き出しを開けたとき、同じサイズのピローが整然と並んでいる——そんな場面もまた、ショールームの「見せ場」のひとつだと思います。


正面の壁面は、来客用クローゼットに
ショールームに入って目に入る正面にはアベイチのロゴが入った壁面が迎えてくれます。実はこの壁面の片側は、来客用のクローゼットとして機能するように設計しています。
ショールームを訪れるお客様が、コートや荷物をさりげなく預けられる場所。
表からは美しいロゴウォールとして空間を印象づけながら、「おもてなし」の機能も担っています。見える部分と見えない部分、その両方に意味を持たせること——収納プランナーとして、私がもっとも大切にしていることのひとつです。
打ち合わせを重ね、造作家具の設計はひと段落。いよいよ施工に入ります。